Monşarj Asansör dwg, ingilizce dilinde Autocad Dumbwaiter Elevator dwg drawing olan monşarj asansörün tanımı; küçük ölçekli yüklerin, yiyecek ve servis malzemelerinin katlar arasında taşınmasını sağlayan kompakt asansör sistemidir. Restoran, otel, villa ve ticari mutfaklarda pratik ve hızlı taşıma çözümü sunar.
Monşarj Asansör DWG
İndirme Bağlantısı: 👉 Monşarj Asansör DWG
Çizim İçeriği: Monşarj Asansör dwg çizimi, Dumbwaiter Elevator dwg drawing
Kategori: 👉 Sistem Detayları / Asansör
Dosya Türü: AutoCAD Programı, DWG Sürümü
Dosya Boyutu: 383 kb.
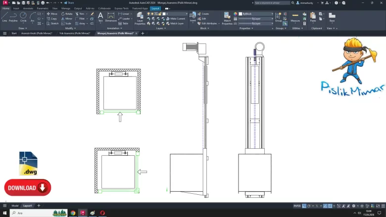
Monşarj asansör DWG çizimleri, mimari ve iç mekan projelerinde kullanılmak üzere hazırlanmış AutoCAD bloklarını içerir. Bu çizimler; küçük kabin, şaft ve kapak sistemlerinin plan, kesit ve görünüş detaylarını kapsamaktadır. DWG formatında sunulan bu içerikler, servis ve mutfak alanlarında fonksiyonel taşıma çözümlerinin doğru şekilde tasarlanmasına yardımcı olur.
Monşarj Asansör Dwg çizimini ücretsiz AutoCAD formatında indirin, Dumbwaiter Elevator CAD Block free download for AutoCAD. Bu çizimler sayesinde projelerinize kolayca entegre edebileceğiniz detaylı ve ölçekli monşarj asansör bloklarına ulaşabilir, tasarım sürecinizi hızlandırabilirsiniz.
Diğer Diller için anahtar kelimeler: Dumbwaiter Elevator DWG, Montaplatos DWG, Monte-plats DWG, Montavivande DWG, ダムウェーター DWG, Elevador monta-pratos DWG, 传菜电梯 DWG







