Proje, köydeki eski bir yapının yıkılıp yeniden inşa edilmesiyle, bölgeye özgün ve kaliteli bir konuk evi kazandırmayı amaçlanarak tasarlanmıştır. İlk olarak proje detaylarını paylaşıp daha sonrasında İç Mimari tasarımlarını ve son olarak Mimari Proje çizimlerini paylaşarak yazıyı sonlandıracağım. Hadi gelin başlayalım 😀
Proje Detayları

Proje alanı: Çin’in Anyang şehrine bağlı Taihang Büyük Kanyonu’nun etkileyici manzaralarıyla çevrili bir konumda yer almaktadır. Bu bölge, “Sekiz Yüz Mil Taihang Dağları’nın Ruh’u” olarak anılmakta olup, Kuzey Çin peyzajlarının özünü temsil etmektedir. Proje, köydeki eski bir yapının yıkılıp yeniden inşa edilmesiyle, bölgeye özgün ve kaliteli bir konuk evi kazandırmayı amaçlamıştır.
Tasarım Yaklaşımı ve Konsept
Proje alanının çevresi, dağ manzaralarının aksine görsel olarak düzensiz ve sıradandır. Bu nedenle, tasarım sürecinde dış çevreden ilham almak yerine iç avluya ve dağ manzaralarına odaklanılmıştır.
Binanın tasarımı, iç avlu etrafında şekillenen kapalı bir düzenlemeye dayanmakta olup, doğu cephesi kamusal alanlara, batı cephesi ise konuk odaları ve iç mekan etkinlik alanlarına ayrılmıştır. Üçüncü kat ve çatıya yerleştirilen açık dinlenme alanları ve seyir terasları, eğimli çatılar aracılığıyla farklı mekânsal deneyimler sunmaktadır.
İç Dekorasyon Detayları
Butik Otelin iç mekan tasarımı, doğallık ve huzur vurgusu yaparak sakin bir atmosfer oluşturma fikri ile tasarlanmıştır. İç mekanlarda el işçiliği sıvası benzeri boyalar kullanılmış, bu da mekâna sıcak ve organik bir his katmıştır.
Aşağıda sizlerle otele ait Resepsiyon, Yemekhane, Otel odası iç tasarımı ve Yatak Odası – Banyo detay görsellerini paylaşıp Mimari detaylarına geçelim.
Ahşap mobilyalar, doğal malzemelerin zarif bir şekilde yerleştirilmesiyle, çevreyle uyumlu bir estetik sunmaktadır. Pencereler ve kapı sistemleri de ahşap detaylarla öne çıkarak mekânın doğal ışığı en iyi şekilde almasını sağlamaktadır.
Yeşil mermer, iç mekanın belirgin özelliklerinden biri olup, mekâna sofistike bir dokunuş eklerken, genel olarak taze ve doğal bir atmosfer yaratılmasına yardımcı olur. (Banyo alanında kullanılmıştır.) Bu tasarım, misafirlere sadece fonksiyonel bir alan sunmakla kalmaz, aynı zamanda görsel ve duygusal bir huzur ortamı da sağlar.
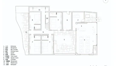
Mimari Proje Çizimleri
Ana yapı, üst üste yerleştirilmiş hacimlerden oluşmakta olup, çift yönlü eğimli çatısı, uzak dağ sıralarını yansıtarak zengin bir katmanlı cephe oluşturur.
Dış cephelerde, geleneksel kayrak taşları dar şeritler halinde kesilerek katmanlı bir düzenleme ile yerleştirilmiş ve beyaz dış cepheyle dikkat çekici bir kontrast yaratılmıştır.
Proje Galerisi
Bu yazımda sizlerle Mimari Projeler kategorisinde yer Butik Otel projesini paylaştım. Proje araştırması yapan arkadaşlar için diğer konularımıza göz atıp fikir sahibi olabilirsiniz.



















