Autocad
- DWG İndir

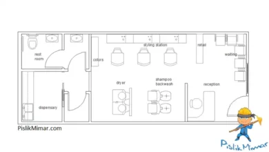
Kuaför Salonu Projesi – Dwg
Kuaför Salonu, Güzellik Merkezi, Bakım Evi gibi projelerde kullanabileceğiz hazır Cad Drawing çizimleri. İndireceğiniz doysa içerisinde Güzellik Merkezi tefrişlerinde yer alan; Şampuan / Yıkama alanı, Bakım koltukları, Ağda alanı içi…
- DWG İndir

Endüstriyel Mutfak – Dwg
Restoranlar, oteller, hastaneler, okullar, kafeteryalar ve diğer büyük yemek servisi ihtiyacı olan yapılarda yer alan Endüstriyel Mutfaklar büyük ölçekli alanlardır. Endüstriyel mutfak içerisinde kullanılan tefriş – dwg ürünleri, dayanıklılık, verimlilik…
- Mimarlık

10+ Mimari Çizim Programları
Yaşam alanlarının tasarımından inşasına kadar her aşamada mimarların imzası vardır. Bu süreçte, doğru ölçülerle çizimler yapabilmek için çeşitli mimari çizim programları kullanılır. Her mimarın işini kolaylaştıran ve verimliliğini artıran bu…
- AutoCAD

Autocad arka plan çizgileri (GRİD) kaldırma
Lafı fazla uzatmadan; AutoCAD programını açtıktan sonra; Klavyenin üst kısmında bulunan “F8″ tuşuna basarak ekran üzerinden (arka plan) çizgilerini açıp kapatabilirsiniz. Eğer sizlerle AutoCAD’i ilk kez kurduysanız bilmeniz gereken tüm…
- AutoCAD

AutoCAD Kursu – Layer / Kalem Kalınlığı Ayarları
Arkadaşlar Merhaba, Sitemizi Günlük 4.000 Kişi ziyaret ediyor, aylık olarak 130.000 kişi Mimarlık, Autocad ve Ev Dekorasyon fikirleri hakkında bilgi almak için şuanda bulunduğunuz sayfaları ziyaret ediyorlar. Son zamanlarda Proje…
- DWG İndir

Kapalı Spor Salonu – Dwg
Bu bölümde, kapalı spor salonları için detaylı ve profesyonelce hazırlanmış DWG formatında mimari çizimleri bulabilirsiniz. Sunulan çizimler, spor salonunun planı, kesiti, cephe görünüşleri ve detayları gibi birçok farklı perspektifi kapsamaktadır.…
- DWG İndir

Konferans Salonu Projesi – Dwg
Konferans salonu genel olarak Sinema formunda çizilen ve farklı amaçlarda kullanmaya da imkan sağlaması için ihtiyaç programına baktığımızda; Sahne Giyinme Odası ve Hazırlık Odası Tuvalet / Wc Sistem Odası (Video,…
- DWG İndir

İnşaat Statik Projesi Nedir? – Proje Örnekleri
Öncelikle şunu söylemem gerekiyor ki; Burada Statik Proje ile ilgili vermiş olduğum teknik bilgiler sadece ön bilgi amaçlıdır. Yani bir yapı inşa ettirmek veya proje çizdirmek isteyenler için teknik bilgiler…
- Mimari Proje Nasıl Çizilir?

Adım Adım Güvenlik Kulübe Proje Çizimi ve AutoCAD Dosyası
Can sıkıntısından nasıl bir içerik yazayım diye düşünürken bugün Mimari Proje Çizimi kategorimize öğrenci arkadaşlar için yararlı bir içerikler eklemek istedim. Bu doğrultuda adım adım Güvenlik Kulübe çizimi ve sonrasında…
Autocad ve Revit Arasındaki Farklar: Hangi Yazılımı Seçmelisiniz?
Autocad ve Revit, her ikisi de Autodesk tarafından geliştirilen popüler yazılımlardır ve mimarlar, mühendisler ve tasarımcılar tarafından kullanılan önemli araçlardır. İşlevsel olarak benzerlikler göstermelerine rağmen, Autocad ve Revit arasında bazı…








